
Bursa'da 380 hektarlık alanda ekolojik temelli bütüncül kentsel tasarım planı için hazırlıklar hız kazandı. Kentsel dönüşüm kapsamında hayata geçirilecek proje, yaya öncelikli ulaşım, yeşil altyapı, ve fosil yakıtsız Pasif Ev sistemi ile tasarlanmış binalarıyla Türkiye'de örnek bir dönüşüm modeli olmayı hedefliyor.
Yaya öncelikli yaklaşımın benimsendiği projede, fosil yakıt kullanılmadan Pasif Ev sistemi ile tasarlanacak binalar, bahçe duvarları olmadan yeşil sistemle bütünleşecek.
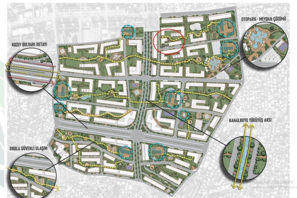
YEŞİL SİSTEM ÜZERİNE KURULU YENİ İMAR MODELİ
Projede ayrık nizam yerine blok nizam tercih edilerek imar adaları büyütüldü. Bahçe duvarlarının kaldırılmasıyla birlikte kullanılmayan yan bahçeler ve önceki sistemde yol olarak ayrılan alanlar yeşil sisteme dahil edildi. Böylece, büyük yeşil sistem üzerine kurulu imar adaları oluşturuldu. 20-30 hektarlık parçacıl imar adaları uygulanabilir şekilde tasarlandı. Bu adaların çevresi en az 30 metre genişliğinde araç yollarıyla çevrilecek. Parklar, sosyal donatı alanları ve eğitim yapıları kesintisiz yeşil yaya akslarıyla birbirine bağlanacak. Proje sayesinde çocukların okula 1-2 km mesafeyi araç trafiğinden arındırılmış güvenli yaya yollarıyla yürüyerek ulaşması sağlanacak.
GÜNLÜK HAYATTA YAYA ÖNCELİĞİ OLACAK
Projenin en dikkat çekici yönlerinden biri, günlük hayatın yürüyerek erişilebilir olması. Eğitim, sağlık, sosyal donatı ve park alanları arasında kesintisiz yaya bağlantıları kurulacak. Böylece, kent sakinleri araç kullanmadan günlük ihtiyaçlarını karşılayabilecek. Bu proje sayesinde sağlıklı, erişilebilir ve sürdürülebilir bir kentsel çevre oluşturmak, çocuklar ve yaşlılar için güvenli yaşam alanları sağlamak,
enerji verimliliği yüksek, fosil yakıtsız konutlar üretmek ve plansız ve çarpık gelişmiş bölgeleri dönüştürerek yaşanabilir bir kent modeli ortaya koymak amaçlanıyor.
Ekolojik temelli bu tasarımın, kentin plansız ve çarpık gelişmiş bölgelerinin tamamında uygulanması hedefleniyor. İlk uygulama etabının 2026 yılında başlaması için çalışmalar başlatıldı.
KUZEY BULVARI YENİ ULAŞIMIN OMURGASI
Projenin en önemli bileşenlerinden biri de 65 metre genişliğindeki Kuzey Bulvarı. Sağlıksız yapılaşmış bölgelerin dönüştürülmesiyle oluşturulacak bulvar, 29 km uzunluğunda 65 metre genişliğinde olacak şekilde kilometreler boyunca kesintisiz devam edecek. Kuzey Bulvarı, kentsel dönüşüm alanlarını kapsayan ve ekolojik temelli tasarım bölgesinden geçen ana ulaşım omurgası olacak. Ulaşım, kentsel dönüşüm ve yeşil altyapı kararları bütüncül bir bakış açısıyla ele alınacak. Bulvar, kent içi trafiği düzenlerken aynı zamanda yeşil sistemle entegre olacak.
BAŞKAN BOZBEY AÇIKLADI Bursa Büyükşehir Belediye Başkanı Mustafa Bozbey, 380 hektarlık alanda yeni bir kentsel tasarımı hayata geçirdiklerini ifade ederek, "Yeni alternatif yolların da bu planlama süreçlerinde ortaya çıktığını paylaşmak istiyorum. Ankara İzmir yolunda Mudanya yoluna paralel olmak üzere 29 kilometre uzunluğunda 65 metrelik kuzey bulvarını ortaya çıkaran bir planlama yapıldı. 380 hekterlık alanda ekolojik temelli yeşil sisteme uygun, öğrencilerin okullarına yüreyerek gideceği kentsel tasarımı aralıksız sürdürüyoruz" diye konuştu.